Eladó családi ház Budapest XXII. ker 199 000 000 Ft

Leírás

BUDAFOKI ÚJ ÉPÍTÉSŰ ÖNÁLLÓ HÁZ GARÁZZSAL - ÁTADÁS IDÉN ŐSSZEL!

Képzeld el, ahogy minden reggel saját kertedben indítod a napot, miközben a ház minden részlete a kényelmedet szolgálja.
Budafok családi házas, zöldövezeti részén épül ez a modern, önálló, garázsos ház, amelyet idén ősszel már birtokba is vehetsz!

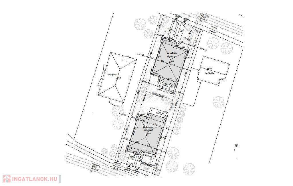
A két utcára nyíló telken kettő önálló épület készül, mindkettő saját mérőórákkal és társasházi jogviszonnyal.
A B. épület (vörös cserepes) már elkelt, így most a másik, antracit árnyalatú ház várja új tulajdonosát - 410 m²-es saját telekrésszel és saját bejárattal.

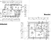
A ház átgondolt elrendezésű:

a tágas, amerikai konyhás nappali és étkező közvetlenül a teraszos kertkapcsolathoz vezet,
a négy különnyíló hálószoba pedig kényelmet és privát teret biztosít mindenkinek.
Két hálóhoz saját fürdőszoba tartozik, az emeleten külön gardrób is helyet kapott.
Az emelet teljes értékű szint, nem tetőtér - minden helyiség tágas és jól bútorozható.

MŰSZAKI TARTALOM - MINŐSÉG ÉS ENERGIAHATÉKONYSÁG

Porotherm 30-as falazat, 15 cm homlokzati és 25 cm tetőszigetelés

E-gerendás vasbeton födém, Leier beton cserép

3 rétegű üvegezésű műanyag nyílászárók, elektromos alumínium redőnyökkel és szúnyoghálóval

Padlófűtés minden helyiségben, helyiségenként szabályozható

HAJDU HPAW 12 kW hőszivattyú + ARISTON LYDOS HYBRID vízmelegítő

Elektromos kapu és személybejáró kiskapu,

Napelem előkészítés, H-tarifás villanyóra

Hideg- és melegburkolatok 8.000 Ft/m²-ig, beltéri ajtók 80.000 Ft/db-ig, rugalmas kivitelezővel egyeztethető kiválasztás

A kerítés, a garázs és a két felszíni murvázott beálló az ár részét képezi - nem kell külön kalkulálnod vele.
A házak önálló mérőórákkal, használatbavételi engedéllyel és társasházi alapító okirattal kerülnek átadásra.

Várható átadás: 2025. november eleje

Energetikai besorolás: A+
CSOK Plusz igényelhető!

HELYSZÍN

Budafok egyik legjobb részén, nyugodt, családi házas környezetben, ahol minden kéznél van – iskola, óvoda, bevásárlás, közlekedés.
A kivitelező referenciái a kerületben megtekinthetők, így biztos lehetsz a minőségben és a megbízhatóságban.

Modern, energiatakarékos otthon - ahol minden négyzetméter a jövőről szól.
Ha szeretnél még idén beköltözni egy új, önálló házba Budafokon, ez az ajánlat most elérhető számodra.

Örömmel mutatom meg Önnek személyesen is - várom hívását szeretettel!

Köszönöm megtisztelő figyelmét. Ha jelenlegi ingatlana értékesítésében is segítségére lehetek, kérem forduljon hozzám bizalommal.

Az OTP teljes ingatlankínálatával kapcsolatban is várom hívását. Ha felkeltettem érdeklődését, kérem keressen a hét bármely napján reggel 8 és este 9 között. Ingatlanokkal kapcsolatban, hitelügyintézéssel, CSOK, Babaváró vagy bármilyen pénzügyi tanácsadással örömmel állunk rendelkezésére.
WE SPEAK ENGLISH, FEEL FREE TO CALL ME!

199000000 Ft

Referencia szám: M311571

Családi ház részletei

Ár: 199 000 000 Ft
Méret: 140 négyzetméter
Azonosító: 11572058
Irodai azonosító: M311571-5060678
Telek: 410 négyzetméter
Ingatlan állapota: Épülő
Jelleg: családi ház
Építőanyag: Tégla
Fűtés jellege: Villany
Fűtés módja: Villany
Komfort fokozat: Dupla komfort
Kor: Új építésű
Szintek száma: 1 szint
Egész szobák: 5

Egyéb jellemzők

  • Garázs

Térkép