Az értékesítő:
Turzó Attila Krisztián
+36 20 550 8749

Eladó családi ház Budapest XXII. ker, 64 900 000 Ft, 56 négyzetméter

64 900 000 Ft
családi ház, 56 négyzetméter
Építőanyag:
Vegyes
Egész szobák:
1
Komfort fokozat:
Összkomfort
Fűtés módja:
Gáz
Ingatlan állapota:
Azonosító:
11572056
Értékesítés típusa:
eladó
Ingatlan típusa:
családi ház
Jelleg:
Házrész
Település:
Budapest XXII. ker
Alapterület:
56
Telekterület:
440
Ár:
64 900 000 Ft
Szintek száma:
Földszintes
Fűtés jellege:
Cirkó
Kor:
50 évesnél régebbi
Telekterület típusa:
négyzetméter
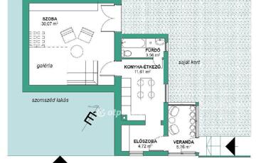
BUDATÉTÉNYBEN KERTESHÁZ - EGY IGAZI OTTHON, AHOL KEZDŐDIK AZ ÉLET A XXII. kerület egyik legkedveltebb kertvárosi részén, Budatétényben, eladóvá vált egy különleges házi otthon, melynek nagy, zöld kertje valódi menedéket nyújt a mindennapok rohanása elől. Ez az a hely, ahol a madarak hangja ébreszt, ahol a kertben virág illata keveredik a friss levegővel, és ahol minden nap egy kicsit lelassul az idő. AZ INGATLANRÓL A ház osztatlan közös tulajdonú telken helyezkedik el, de használati megosztási szerződés és vázrajz is rendelkezésre áll, így hitelre is megvásárolható. A 440 m²-es hangulatos kert 11 méteres utcafronttal rendelkezik, az utcán saját parkolóhely, a kertben pedig autóbeálló biztosít kényelmes parkolást. Az ingatlan teljesen önállóan megközelíthető és használható, így az otthon nyugalma semmiben sem függ a szomszédoktól. A csendes, kis forgalmú utca békéje azonnal megérint - itt tényleg hazaér az ember. A LAKÁS HANGULATA A kertkapun belépve virágok és zöld növények kísérnek a bejárati verandáig, ahonnan az előszobába érkezünk. A lakásban egy praktikus, jól felszerelt konyha-étkező, egy fürdőszoba, valamint egy tágas, nagy belmagasságú szoba található, amelyet egy alvógaléria is bővít - ez a tér valóban különleges. Innen terasza nyílik a kert felé, ahol a délutáni fény aranysárgára festi a füvet. A ház gáz cirkó fűtéssel és radiátoros hőleadókkal működik, a falazat kő és tégla, a nyílászárók pedig modern, két rétegű, hőszigetelt üvegezésű ablakok. Az ingatlan jó állapotú és azonnal költözhető, a tetőtér pedig beépíthető, ha nagyobb térre vagy külön szobákra lenne szükség. A KÖRNYÉK ELŐNYEI Budatétény kertvárosi része igazán élhető környezet - csendes, zöld, családias, ugyanakkor minden könnyen elérhető. Buszmegálló: 50 méterre Óvoda, bölcsőde, bolt: 500 méteren belül Campona bevásárlóközpont, Művelődési ház, Tanuszoda, vasútállomás: kb. 1 km-re Az utcákban a parkolás ingyenes és kényelmes. OTTHON START HITELPROGRAMMAL IS ELÉRHETŐ Az ingatlan minden törvényi feltételnek megfelel, így Otthon Start Hitelre is megvásárolható. A teljes ügyintézésben is segítünk, hogy az új életkezdés gördülékeny legyen. EGY HÁZ, AMI MEGHÁLÁLJA, HOGY SZERETETTEL LAKJÁK Ez az otthon azoknak szól, akik nem csupán házat, hanem békét, természetet és valódi otthonérzetet keresnek. Budatétényben minden megvan ahhoz, hogy új fejezet kezdődjön az életedben - egy hely, ahol hazaérsz. Örömmel mutatom meg Önnek személyesen is - várom hívását szeretettel! Köszönöm megtisztelő figyelmét. Ha jelenlegi ingatlana értékesítésében is segítségére lehetek, kérem forduljon hozzám bizalommal. Az OTP teljes ingatlankínálatával kapcsolatban is várom hívását. Ha felkeltettem érdeklődését, kérem keressen a hét bármely napján reggel 8 és este 9 között. Ingatlanokkal kapcsolatban, hitelügyintézéssel, CSOK, Babaváró vagy bármilyen pénzügyi tanácsadással örömmel állunk rendelkezésére. WE SPEAK ENGLISH, FEEL FREE TO CALL ME! 64900000 Ft Referencia szám: M311350
https://ingatlanok.hu/elado/haz/budapest-xxii-ker/65-millio-ft;56-negyzetmeter;1-szoba;cirko-futes/11572056