Eladó családi ház Solymár 189 000 000 Ft

Leírás

ÖRÖKPANORÁMÁS IKERHÁZ ELADÓ MAGAS MŰSZAKI TARTALOMMAL!

Eladó prémium a Pilisre nyíló örök panorámás, minimál stílusú okos otthon Solymáron, a szomszédban új építésű villákkal.

Az épület kialakítása nem a megszokott egymás mellett elhelyezkedő ikerház hangulatot adja, hanem egymás feletti lépcsőzetes eltolással helyezkednek el, ezzel olyan érzést nyújt mintha önálló családi házban élne, belső két szintesek.

Az ingatlan A++ energiahatékonysági besorolással rendelkezik, hatalmas üvegfelületei nem csak luxus megjelenést adnak de világos tágas tereket biztosít.

Jelenlegi készültségi szinten lehetőség van a burkolatok, szaniterek megválasztására.

I. HÁZ:
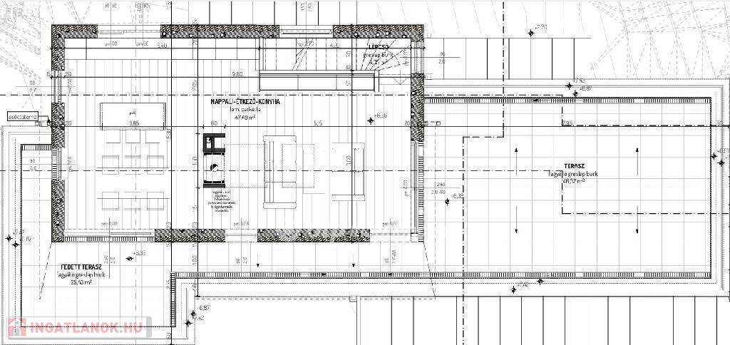
Alapterület: 189,83 m2
Alsó szint:
Előszoba: 7,41 m2
Konyha, nappali, étkező: 36,22 m2
Hálószoba: 12,26 m2
Tároló (mosókonyha): 2 m2
Fürdőszoba: 5,62 m2
Terasz: 54,9 m2

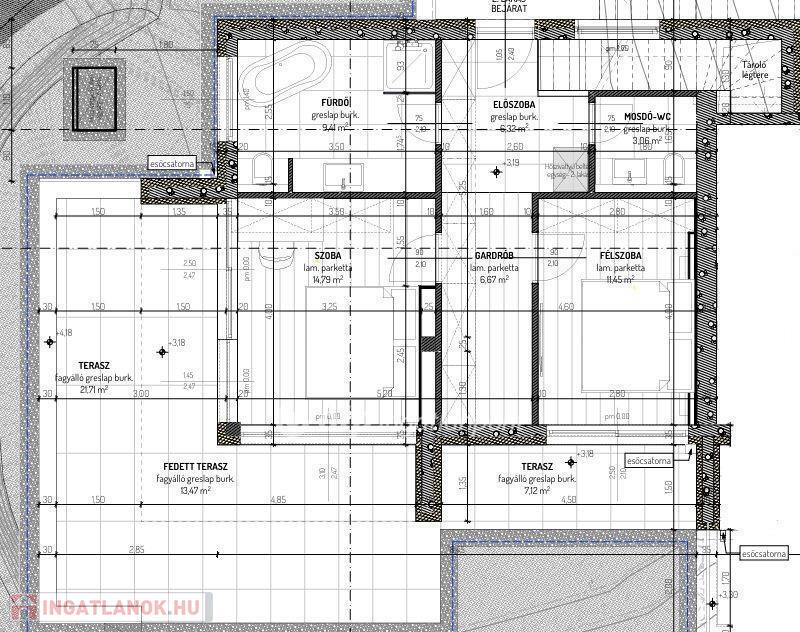
Felső szint:
Közlekedő: 14,33 m2
Hálószoba: 11,53 m2
Hálószoba: 15,56 m2
Fürdőszoba: 9,11 m2
Terasz: 20,89 m2


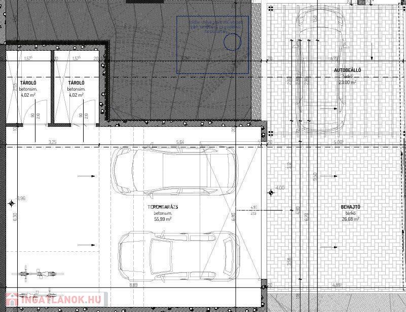
GARÁZS:
Elektromos ajtóval ellátott teremgarázs 1 autó parkolását biztosítja.
Garázs: 28 m2
Tároló: 4.02 m2


Lokáció:

A környék nyugalmat és természetközeli életérzést biztosít, ugyanakkor Budapest II. kerülete mindössze néhány percre található. Tömegközlekedés szempontjából is több lehetőség adódik, a solymári vasútállomásról mindössze 19 perc a Nyugati pályaudvar vagy 9 perc az Aquincum, de számos kék buszjárat is van, amivel kényelmesen, átszállás nélkül eljuthatunk Budapestre.

Közelben található:
- Jegenye-völgy és túraútvonalak (Pilisi parkerdő)
- Gyarmati Dezső uszoda
- Francia Óvoda, Általános iskola és Gimnázium
- Mária-remetei közösségi liget
- Hidegkút
- Hűvösvölgy

Ideális választás nagycsaládosoknak, többgenerációs családoknak vagy azoknak, akik egyedi, modern és elegáns otthonra vágynak a főváros közelségében.

Az ár a kulcsrakész állapotra vonatkozik!

Minden érdeklődött szívesen várunk, hívjon bátran a megadott telefonszámon!

Családi ház részletei

Ár: 189 000 000 Ft
Méret: 171 négyzetméter
Azonosító: 11558112
Irodai azonosító: M309519-5013528
Telek: 360 négyzetméter
Ingatlan állapota: Épülő
Jelleg: ikerház
Építőanyag: Vegyes
Fűtés jellege: Villany
Fűtés módja: Hőszivattyú
Komfort fokozat: Dupla komfort
Kor: Új építésű
Szintek száma: 1 szint
Egész szobák: 4

Egyéb jellemzők

  • Garázs

Térkép